Warren Place
Apartment | Private or Double Rooms | Full Kitchen
Open to first-year and returning students
Warren Place is a co-ed (by apartment) building with easy access to King Street and all that Charleston has to offer. It consists of three buildings (1, 10 and 20 Warren) located at the northern end of campus on Warren Street, between King and St. Philip streets. All three buildings have elevator access.
Each apartment features:
- two to five bedrooms housing three to eight residents
- one or two bathrooms
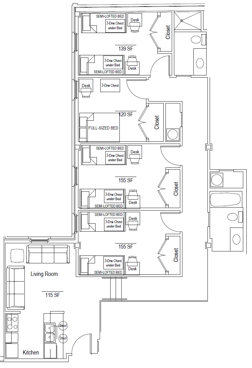
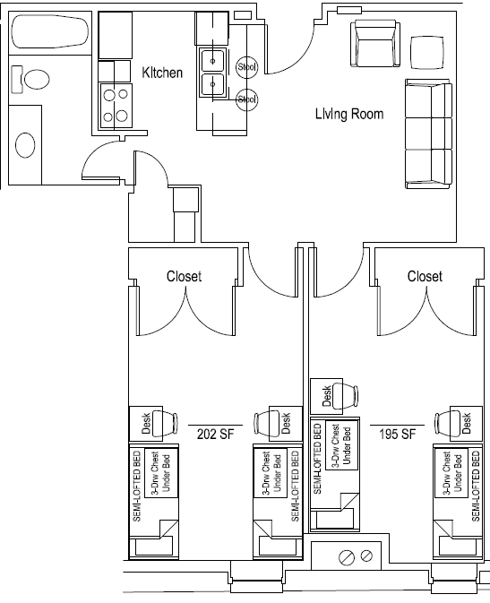
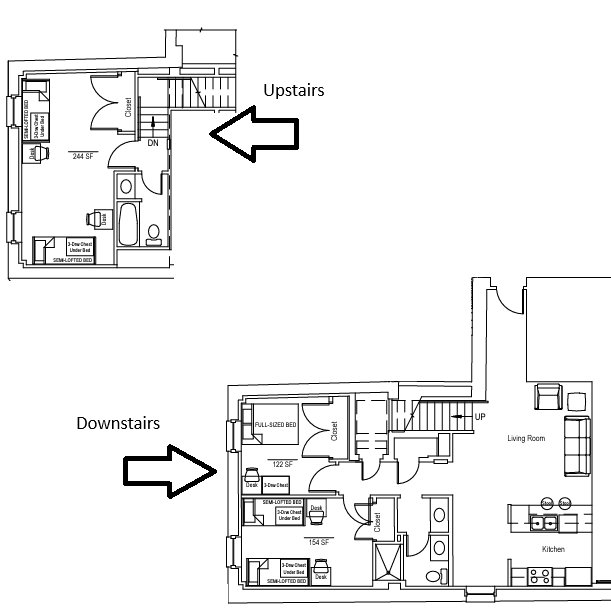
- fully furnished living room
- dining table and chairs or stools at the kitchen counter
- full kitchen with microwave, dishwasher, stove and full-size refrigerator

Warren Place offers comfortable, apartment-style living. Designed with community and convenience in mind, all apartments open to inside corridors, and each building includes free washers and dryers on the ground floor along with a welcoming first-floor lounge where you can relax or meet neighbors. There’s also bicycle storage in an outdoor shared area. Warren Place has air-conditioning and high-speed Wi-Fi, along with a 24-hour information and security desk (10 Warren) for resident support. Whether you’re studying, socializing, or exploring campus and downtown Charleston, Warren Place is a vibrant place to call home.
Please visit the Residence Halls page for housing rates.
Apply for HousingWatch a 360º Tour
Watch a 360º Tour
Learn more about Warren Place!
-
Amenities and Dimensions
- Bedroom dimensions may vary according to specific location, but typical bedrooms measure 14’ L x 10’-6” W.
- Double-occupancy rooms have semi-lofted beds. Each bed has a wooden frame measuring 36” W x 85" L with approximately 30” of vertical clearance underneath. Mattresses accept only twin extra-long sheets.
- Full-size bed (private rooms): 80” L x 54” W. Standard full-size sheets required.
- Closet sizes vary but average 78” W x 24” D x 96” H. Some closet doors have been removed for furniture clearance.
- Desk: 26” W x 24” D x 30” H. All desks have a retractable keyboard and mouse surface with rear storage.
- Desk chair
- Chest of drawers: 30” W x 24” D x 30” H
- Typical apartments have a couch (80" W x 34" D x 33" H), living room chair (36" W x 34" D x 33" H), and end table (24" W x 24" D x 22" H).
- One window: varying in dimensions according to apartment. Average window size is approximately 30” W x 70” H. All windows are covered by 1" aluminum mini-blinds. We do not allow wall or frame-fastened curtain rods, but students may drape fabric from the valence of the blinds.
- Bathrooms feature an enclosed room with a toilet, shower and sink. Showers come with a liner that measures 72” W x 72” L.
-
Sample Floor Plans
1 Warren (returning students only)
- Two-bedroom apartment (2 double-occupancy bedrooms, 1 bathroom): 6 units
- Three-bedroom apartment (3 double-occupancy bedrooms, 2 bathrooms): 6 units
- Three-bedroom apartment (2 double-occupancy bedrooms, 1 private bedroom, 2 bathrooms): 3 units
- Four-bedroom apartment (1 double-occupancy bedroom, 3 private bedrooms, 2 bathrooms): 1 unit
- Four-bedroom apartment (2 double-occupancy bedrooms, 2 private bedrooms, 2 bathrooms): 1 unit
- Four-bedroom apartment (4 double-occupancy bedrooms, 2 bathrooms): 2 units
10 Warren (incoming students only)
- Four-bedroom apartment (4 double-occupancy bedrooms, 2 bathrooms): 25 units
- Four-bedroom apartment (3 double-occupancy bedrooms, 1 private bedroom, 2 bathrooms): 4 units
20 Warren (returning students only)
- Three-bedroom apartment (3 double-occupancy bedrooms, 2 bathrooms): 6 units
- Four-bedroom apartment (4 double-occupancy bedrooms, 2 bathrooms): 20 units
- Five-bedroom apartment (5 private bedrooms, 2 bathrooms): 3 units
-
Street Address
Warren Place is located 1, 10 and 20 Warren Street.