George Street Apartments
Apartment | Private Rooms | Full Kitchen | Laundry in Unit
Open to returning students
George Street Apartments is in the center of campus, across the street from the Cistern Yard, and is conveniently located above retail stores and next door to Liberty St. Food Hall, one of our all-you-care-to-eat dining halls. This co-ed (by apartment), four-story building is at the corner of George and St. Philip streets. George Street Apartments has elevator access.
Each apartment features:
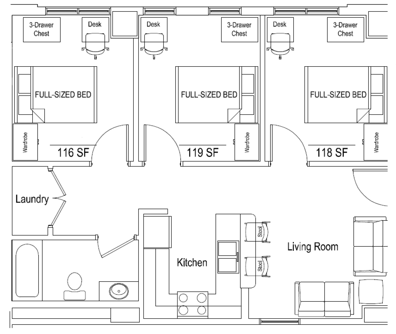
- three to five private bedrooms housing three to five residents
- one to two bathrooms
- a fully furnished living room
- a kitchen with stove, microwave, sink, dishwasher, and full-size refrigerator
- washer and dryer

George Street Apartments, built in 2007 and renovated in 2018, offers a modern and inviting living environment. Each apartment overlooks a welcoming open courtyard furnished with comfortable outdoor seating, perfect for relaxing or socializing. All apartments are fully air-conditioned and equipped with high-speed Wi-Fi.
Please visit the Residence Halls page for housing rates.
Apply for HousingWatch a 360º Tour
Learn more about George!
-
Amenities and Dimensions
- Bedroom dimensions may vary, but the average size is 9’-3” W x 11’-3” L
- Wood frame full-size bed: 80” L x 54” W. Mattresses accept full sheets.
- Desk: 24” W x 24” D x 30” H
- Desk chair
- Chest of drawers: 36” W x 24” D x 30” H
- Wardrobe: 36” W x 24” D x 72” H
- Window sizes vary, but the average is 38” W x 70” H. They are covered by 2”-slat blinds. Students may drape fabric from the valance but may not use wall or frame-fastened curtain rods.
- Floor lamp in each bedroom
- Apartment has two love seats (58" W x 33" H x 34" D) and an end table (24" W x 22" H x 24" D)
- Standard apartments have bar stools; ADA apartments have a dining table and chairs
- Bathrooms feature an enclosed room with a toilet, shower and sink. Showers come with a liner that measures 72" W x 72" L.
-
Sample Floor Plans
- Three-bedroom apartment (3 private bedrooms, 1 bathroom): 26 units
- Four-bedroom apartment (4 private bedrooms, 2 bathrooms): 24 units
- Five-bedroom apartment (5 private bedrooms, 2 bathrooms): 5 units
-
Street Address
George Street Apartments is located at 55 George Street.